Charlotte Jacobslaan 71, Den Haag

Omschrijving

For English text, please see below.

Comfortabele, gasloze en energiezuinige (A label) eengezinswoning met vier slaapkamers, voor- en achtertuin met achteringang en eigen parkeerplaats op gemeenschappelijk afgesloten terrein. Gelegen in de in 2018 ontwikkelde autoluwe wijk "De Schone Ley" met uitzicht op het Florence Nightingale Park. Het terrein is afgesloten d.m.v. een slagboom en naast de privé parkeerplaatsen is er ook nog een speeltuin.

Zeer centrale ligging in de wijk Houtwijk/Leyenburg tussen winkelcentrum de Savornin Lohmanplein en winkelcentrum Leyweg in. Op korte afstand zijn recreatiegebieden en parken. Diverse scholen (o.a. The International School of The Hague), de binnenstad en het strand zijn op fietsafstand. Openbaar vervoer is op loopafstand en met de auto bent u dichtbij de uitvalswegen A4 en A13.

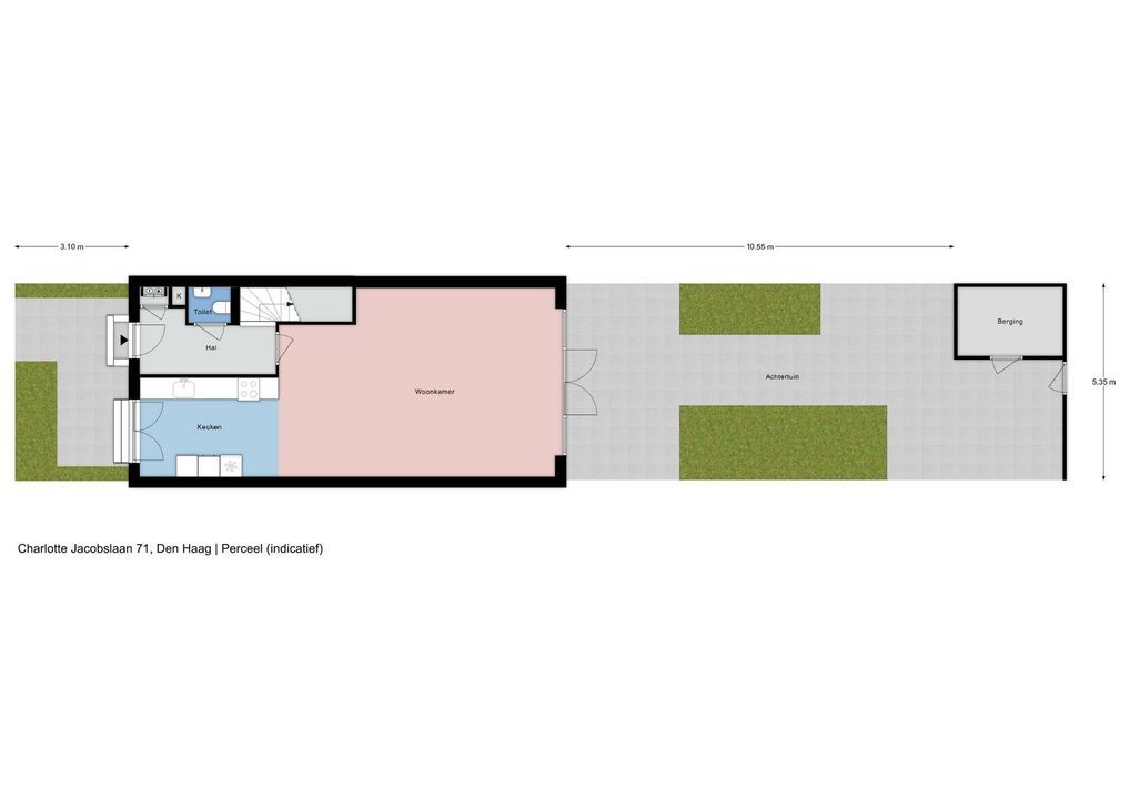
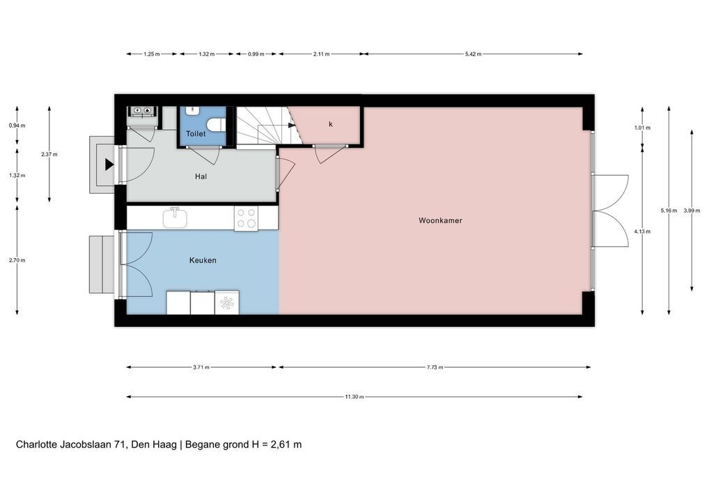
Zie de plattegronden voor de maatvoering.

Indeling: entree, hal v.v. tegelvoer en met meterkast en toilet, woon- eetkamerkamer v.v. houten planken vloeren, open keuken (Bruynzeel) aan de voorzijde v.v. inbouwapparatuur van Siemens (w.o. inductie kookplaat, combi-oven, afwasmachine en ijskast/vriezer), toegang tot de achtertuin.
Trap naar de eerste verdieping: overloop, twee slaapkamers aan de voorzijde, badkamer v.v. inloopdouche, wastafelmeubel, toilet en ligbad.
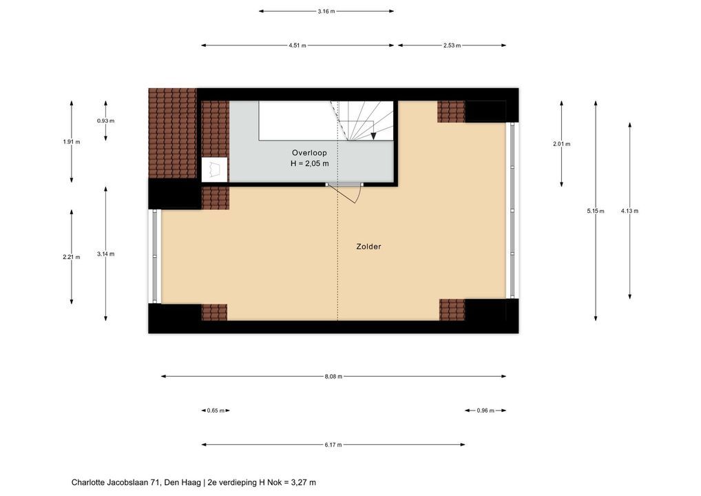
Trap naar de tweede verdieping: overloop met opstelplaats wasmachine/droger, grote slaapkamer met dakkapel aan de achterzijde en vide.

Overig:
- Erfpacht eeuwigdurend en canon is afgekocht;
- Energielabel A;
- Stadsverwarming;
- Vloerverwarming;
- 3 zonnepanelen;
- 1 eigen parkeerplaats en speeltuin op binnenterrein;
- Maandelijkse bijdrage aan de bewonersvereniging van € 35,-- voor onderhoud gemeenschappelijk terrein;
- Oplevering in overleg (kan snel).

Interesse in dit huis? Schakel direct uw eigen NVM aankoopmakelaar in.
Uw NVM aankoopmakelaar komt op voor uw belang en bespaart u tijd, geld en zorgen.
Adressen van collega NVM aankoopmakelaars in Haaglanden vindt u op funda.nl.

Deze informatie is door ons met de nodige zorgvuldigheid samengesteld. Onzerzijds wordt echter geen enkele aansprakelijkheid aanvaard voor enige onvolledigheid, onjuistheid of anderszins, dan wel de gevolgen daarvan. Alle opgegeven maten en oppervlakten zijn indicatief.
------------------------------------------------------------------------------------------------------------------------------------------------------

Comfortable, gas-free and energy-efficient (A label) single-family home with 4 bedrooms, front and back gardens, rear entrance, and private parking on enclosed grounds, located in the "De Schone Ley" neighborhood, developed in 2018, overlooking Florence Nightingale Park. The gated grounds include private parking spaces and a shared playground.

Very centrally located in the Houtwijk/Leyenburg, between the Savornin Lohmanplein shopping center and the Leyweg shopping center. Recreational areas and parks are a short distance away. Several schools (including The International School of The Hague), the city center and the beach are within cycling distance. Public transport is within walking distance and the A4 and A13 highways are easily accessible by car.

See the floor plans for dimensions.

Layout: entrance hall with tiled floor and meter cupboard and toilet, living/dining room with hardwood floors, open-plan kitchen (Bruynzeel) at the front with built-in Siemens appliances (including induction cooktop, combination oven, dishwasher, and refrigerator/freezer), access to the back garden.

Stairs to the first floor: landing, two bedrooms at the front, bathroom with walk-in shower, vanity and bathtub.

Stairs to the second floor: landing with washer/dryer connections, large bedroom with dormer window at the rear, and a loft.

Other:
- Perpetual leasehold that has been bought off;
- Energy label A;
- District heating;
- Underfloor heating;
- 3 solar panels;
- 1 private parking space and playground in the courtyard;
- Monthly contribution to the homeowners' association of € 35.-- for maintenance of the common areas;
- Transfer in consultation (can be done quickly).

Interested in this house? Contact your own NVM purchasing agent immediately.
Your NVM purchasing agent will represent your interests and save you time, money, and worry.
You can find the addresses of fellow NVM purchasing agents in The Hague on funda.nl.

We have compiled this information with the utmost care. However, we accept no liability for any incompleteness, inaccuracy, or otherwise, or for any consequences thereof. All stated dimensions and surface areas are indicative.

Kenmerken

Overdracht

Prijs
€ 695.000 k.k.
Status
Beschikbaar
Oplevering
In overleg

Bouw

Soort woonhuis
Herenhuis, Tussenwoning
Soort bouw
Bestaande bouw
Bouwjaar
2018
Onderhoud binnen
Goed
Onderhoud buiten
Goed

Oppervlakten en inhoud

Woonoppervlakte
140m²
Perceeloppervlakte
156m²
Inhoud
527m³

Indeling

Aantal kamers
5
Aantal slaapkamers
4
Aantal badkamers
1
Aantal verdiepingen
3
Voorzieningen
Dakraam, Glasvezel kabel, Mechanische ventilatie, TV-Kabel, Zonnepanelen

Energie

Energielabel
A
Isolatie
Volledig geisoleerd
Warm water
Stadsverwarming
Verwarming
Stadsverwarming

Buitenruimte

Ligging
Aan park, Aan rustige weg, In woonwijk
Tuin
Achtertuin, Voortuin
Achtertuin
Noordoost, 56m², 535×1055cm
Schuur
Vrijstaand hout
Faciliteiten schuur
Voorzien van elektra

Garage

Locatie

[ { "address": "Charlotte Jacobslaan 71", "zipCode": "2545 AB", "city": "Den Haag", "lat": 52.0552308, "lng": 4.2608938, "heading": 0, "pitch": 0 } ]

Plattegronden

Reageer

Uw bericht is naar ons verzonden. Wij nemen zo snel mogelijk contact met u op.

Sorry, we kunnen helaas niet met zekerheid vaststellen of je een mens of een geautomatiseerde bot/spammer bent. Hierdoor kunnen we het formulier dat je hebt ingevuld niet verzenden. Probeer het opnieuw of neem direct contact op met de makelaar via e-mail.

Er is iets mis gegaan met het versturen van het formulier.
Controleer of u alle velden (goed) heeft ingevoerd en probeer het nog een keer.

recaptcha
reCAPTCHA
PrivacyTerms

Vergelijkbare woningen

Verkocht
 130m²
 3 slaapkamers
Balistraat 86 C
Den Haag
€ 695.000 k.k.
Verkocht
 183m²
 5 slaapkamers
Malakkastraat 91
Den Haag
€ 745.000 k.k.
Verkocht
 132m²
 2 slaapkamers
Noordeinde 98 A
Den Haag
€ 625.000 k.k.