Ananasstraat 126, Den Haag

Omschrijving

In gezellige woonstraat in de Vruchtenbuurt gelegen charmant dertiger jaren tussenherenhuis (ca. 144m2) met voor-/en achtertuin op het Zuiden.

Gelegen op (loop)afstand van winkelcentrum de Savornin Lohmanplein, openbaar vervoer, strand, zee en duinen en Internationale scholen.

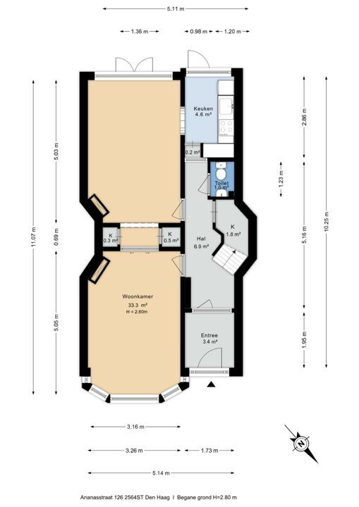
Indeling: voortuin met fietsenstalling, entree, hal/garderobe met meterkast en tochtdeur, gang met trapkast, wc met fonteintje, woon-/eetkamer met suite separatie en parketvloer, half openkeuken, dubbele deuren naar achtertuin(Z-W).
1e verdieping: overloop met wc, badkamer met ligbad, douche en wastafel, achter slaapkamer met dubbele deuren naar balkon, voorslaapkamer met balkon en doorgang naar voorzijkamer.
2e/kapverdieping: overloop, voorkamer met dakkapel, voorzijkamer met aansluiting wasmachine/droger, achterkamer volle breedte met dakkapel, opstelling CV (Remeha Avanta 2009) en luik naar vliering/bergzolder.

Bijzonderheden:
- Erfpacht: De grondwaarde is € 41.250,00 en huidig geldende canonpercentage is 3,3%. De canon bedraagt per halfjaar achteraf € 680,63 + € 17,00 beheerkosten. De eerstvolgende herziening van het canonpercentage (en de canon) vindt plaats op 1-1-2030.
- perceel oppervlakte 139m2
- Betaald parkeren middels bewonersvergunning.
- Geheel vv. dubbele beglazing
- Vaste boedel notaris van toepassing
- Ivm het bouwjaar worden de alg. asbest- en ouderdomsclausule alsmede de "niet recent door verkoper bewoond clausule" opgenomen in de NVM koopovereenkomst. ("As is where is")

=====================================================
Charming 1930s terraced townhouse (approx. 144 m²) situated on a pleasant residential street in the Vruchtenbuurt, featuring a south-facing front and back garden.

Located within walking distance of the Savornin Lohmanplein shopping center, public transport, the beach, sea and dunes, and international schools.

Layout: front garden with bicycle storage, entrance, hall/cloakroom with meter cupboard and draft door, hallway with stair cupboard, toilet with washbasin, living/dining room with suite separation and parquet flooring, semi-open kitchen, double doors to the back garden (South-West).

1st floor: landing with toilet, bathroom with bathtub, shower and washbasin, rear bedroom with double doors to balcony, front bedroom with balcony and passage to the front side room.

2nd/attic floor: landing, front room with dormer window, front side room with washing machine/dryer connection, full-width rear room with dormer window, central heating unit (Remeha Avanta 2009) and hatch to loft/storage attic.

Particulars:
- Leasehold: The land value is € 41,250.00 and the currently applicable ground rent percentage is 3.3%. The ground rent amounts to € 680.63 per half-year in arrears + € 17.00 management costs. The next revision of the ground rent percentage (and the ground rent) will take place on 1-1-2030.
- Plot area 139m2
- Paid parking via resident permit
- Double glazing throughout
- Project notary applicable
- Due to the year of construction, the general asbestos and age clause, as well as the "not recently occupied by seller clause," will be included in the NVM purchase agreement. ("As is where is")

Kenmerken

Overdracht

Prijs
€ 715.000 k.k.
Inrichting
Gestoffeerd
Status
Beschikbaar
Oplevering
In overleg

Bouw

Soort woonhuis
Herenhuis, Tussenwoning
Soort bouw
Bestaande bouw
Bouwjaar
1935
Onderhoud binnen
Redelijk
Onderhoud buiten
Goed

Oppervlakten en inhoud

Woonoppervlakte
144m²
Perceeloppervlakte
139m²
Inhoud
545m³

Indeling

Aantal kamers
8
Aantal slaapkamers
6
Aantal badkamers
1
Aantal verdiepingen
4
Voorzieningen
TV-Kabel

Energie

Energielabel
D
Isolatie
Gedeeltelijk dubbel glas
Warm water
C.V.-ketel, Elektrische boiler eigendom
Verwarming
C.V.-ketel
Ketel
Remaha Avanta (2009, Combi-ketel, Eigendom)

Buitenruimte

Ligging
Aan rustige weg, In woonwijk
Balkon
Ja
Tuin
Achtertuin, Voortuin
Achtertuin
Zuidwest, 45m², 500×900cm

Garage

Locatie

[ { "address": "Ananasstraat 126", "zipCode": "2564 ST", "city": "Den Haag", "lat": 52.066728, "lng": 4.2491556, "heading": 0, "pitch": 0 } ]

Plattegronden

Reageer

Uw bericht is naar ons verzonden. Wij nemen zo snel mogelijk contact met u op.

Sorry, we kunnen helaas niet met zekerheid vaststellen of je een mens of een geautomatiseerde bot/spammer bent. Hierdoor kunnen we het formulier dat je hebt ingevuld niet verzenden. Probeer het opnieuw of neem direct contact op met de makelaar via e-mail.

Er is iets mis gegaan met het versturen van het formulier.
Controleer of u alle velden (goed) heeft ingevoerd en probeer het nog een keer.

recaptcha
reCAPTCHA
PrivacyTerms

Vergelijkbare woningen

Verkocht
 130m²
 3 slaapkamers
Balistraat 86 C
Den Haag
€ 695.000 k.k.
Verkocht
 183m²
 5 slaapkamers
Malakkastraat 91
Den Haag
€ 745.000 k.k.
Verkocht
 132m²
 2 slaapkamers
Noordeinde 98 A
Den Haag
€ 625.000 k.k.