Zeilstraat 86, Den Haag

Omschrijving

Luxurious and very tastefully renovated fully furnished fisherman's house with 2 bedrooms, courtyard, back entrance and spacious terrace on the southwest, located just behind the boulevard, less than 300 meters from the sea and the beach, in one of the nicest car-free streets of Old Scheveningen. Close to shops and public transport.

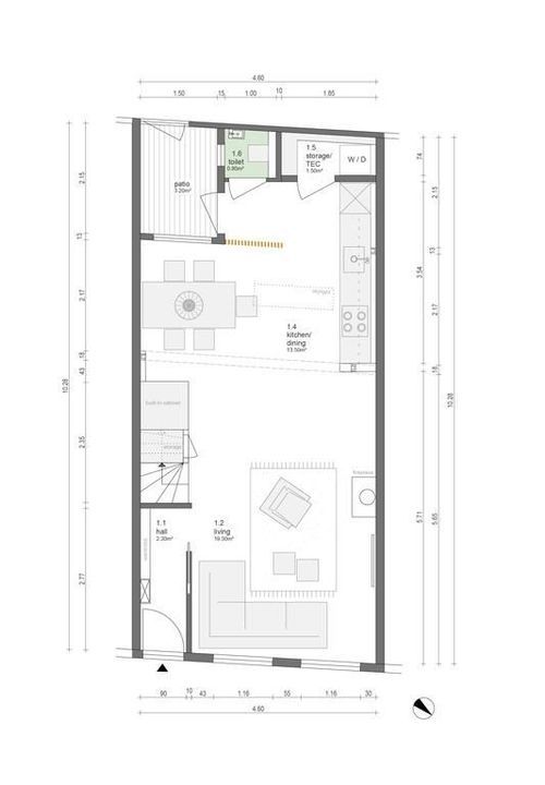
Layout: entrance, hall, living-dining room with luxurious open kitchen with built in appliances, laundry room, toilet and access to the courtyard. Stairs to the first floor: two bedrooms, luxury bathroom with bath and separate shower, access to the terrace.

Special features:

- Fully furnished;
- Appr. 70m2;
- No home sharing / students;
- No pets;
- No smoking;
- Heat pump;
- Solar panels, floor heating, infrared panels so lower energy costs.
--------------------------------------------------------------------------------------------------------------------------------------
Luxe en zeer smaakvol gerenoveerde gemeubileerde visserswoning met 2 slaapkamers, binnenplaats, achterom en riant zonneterras op het zuidwesten, gelegen vlak achter de boulevard op nog geen 300 meter loopafstand van de zee en het strand, in één van de leukste autoluwe straatjes van Oud-Scheveningen. Winkels en openbaar vervoer zijn op korte afstand.

Indeling: entree, hal, woon- eetkamer met luxe open keuken met Quooker en diverse inbouwapparatuur, bijkeuken met opstelplaats wasmachine/droger, toilet en toegang tot de binnenplaats. Trap naar de eerste verdieping: overloop, twee slaapkamers, complete luxe badkamer met bad en aparte douche, toegang tot het terras.

Bijzonderheden:

- Gemeubileerd;
- Ca. 70m2;
- Energiezuinig, warmtepomp, vloerverwarming, infraroodpanelen en zonnepanelen (eind juni);
- Geen woningdelers / studenten;
- Geen huisdieren;
- Geen rokers.

Kenmerken

Overdracht

Prijs
€ 2.100 p.m. ex.
Inrichting
Gemeubileerd
Status
Verhuurd
Oplevering
In overleg

Bouw

Soort woonhuis
Eengezinswoning, Tussenwoning
Soort bouw
Bestaande bouw
Bouwjaar
1939
Onderhoud binnen
Uitstekend
Onderhoud buiten
Uitstekend

Oppervlakten en inhoud

Woonoppervlakte
68m²
Inhoud
252m³

Indeling

Aantal kamers
3
Aantal slaapkamers
2
Aantal badkamers
1
Aantal verdiepingen
2
Voorzieningen
Mechanische ventilatie, Zonnepanelen

Energie

Energielabel
A
Isolatie
Dakisolatie, Dubbel glas, Vloerisolatie
Warm water
Doorstroomboiler
Verwarming
Elektrische verwarming, Vloerverwarming gedeeltelijk, Warmtepomp

Buitenruimte

Ligging
Aan rustige weg, In woonwijk
Tuin
Plaats
Plaats
Zuidwest, 6m², 200×300cm

Garage

Locatie

[ { "address": "Zeilstraat 86", "zipCode": "2586 RE", "city": "Den Haag", "lat": 52.1067717, "lng": 4.2757382, "heading": 0, "pitch": 0 } ]

Plattegronden

  • Reactieformulier


    Uw bericht is naar ons verzonden. Wij nemen zo snel mogelijk contact met u op.

    Sorry, we kunnen helaas niet met zekerheid vaststellen of je een mens of een geautomatiseerde bot/spammer bent. Hierdoor kunnen we het formulier dat je hebt ingevuld niet verzenden. Probeer het opnieuw of neem direct contact op met de makelaar via e-mail.

    Er is iets mis gegaan met het versturen van het formulier.
    Controleer of u alle velden (goed) heeft ingevoerd en probeer het nog een keer.

    recaptcha
    reCAPTCHA
    PrivacyTerms
  • Hartelijk dank voor uw interesse in deze woning

    Het inschrijfformulier is succesvol verstuurd. Wij nemen zo snel mogelijk contact met u op.

    Hartelijke groet,
    Het team van Real Estate Partners

    Sorry, we kunnen helaas niet met zekerheid vaststellen of je een mens of een geautomatiseerde bot/spammer bent. Hierdoor kunnen we het formulier dat je hebt ingevuld niet verzenden. Probeer het opnieuw of neem direct contact op met de makelaar via e-mail.

    Er is iets mis gegaan met het versturen van het formulier.
    Controleer of u alle velden (goed) heeft ingevoerd en probeer het nog een keer.

    Heeft u deze woning bezichtigd?

    Vul dan onderstaand formulier in als u deze woning wilt huren. Na het versturen van de ingevulde gegevens zullen wij met de verhuurder alle kandidaten doornemen en een keuze maken.


    Persoonsgegevens (verplicht)


    Samen huren?


    Vul hieronder de gegevens van de mede huurder in:

    Documenten uploaden (verplicht)

    Let op; maximaal 2 mb bestandsgrootte per bestand.

    Let op, foto maken recht boven het document van alleen de detaillering pagina in hogere kwaliteit met een smartphone of tablet zonder flits

    Extra documenten uploaden (niet verplicht, wel kans verhogend)


    Heeft u alles ingevuld? Klik dan op verzenden. Wij zullen contact met u opnemen wanneer u in aanmerking komt voor deze woning.
    recaptcha
    reCAPTCHA
    PrivacyTerms

Vergelijkbare woningen

Verhuurd
 96m²
 2 slaapkamers
Van Bylandtstraat 78
Den Haag
€ 1.950 p.m. ex.
Verhuurd
 85m²
 3 slaapkamers
Vissershavenstraat 10
Den Haag
€ 1.950 p.m. ex.
Verhuurd
 88m²
 2 slaapkamers
Gevers Deynootweg 85 B
Den Haag
€ 1.750 p.m. inc.