Van Beverningkstraat 133, Den Haag

Omschrijving

In één van de mooiste straten van het Statenkwartier , gelegen om de hoek van de gezellige Frederik Hendriklaan met al haar restaurants, speciaalzaken, traiteurs etc. treft u deze goed onderhouden 4 kamer parterrewoning + souterrain.

Het appartement is gelegen in een voormalig herenhuis met hoge, originele plafonds, een schuifseparatie met glas-in-lood roedeverdeling, paneeldeuren, 2 marmeren schouwen en geheel voorzien van dubbele beglazing.

Indeling :

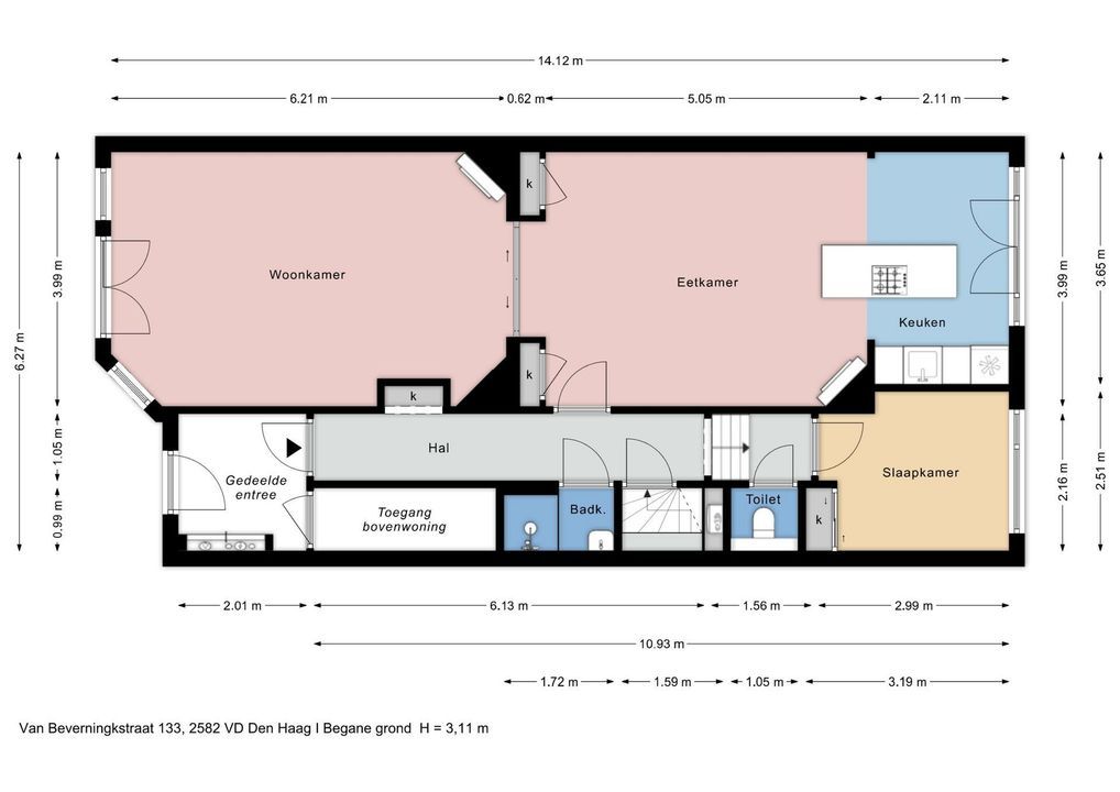
Voortuin, gezamenlijke entree ; entree appartement met lange gang met granieten vloer, een ruime garderobekast alsmede een modern toilet +fonteintje als ook een beknopte badkamer met douche en vaste wastafel + meubel.

Riante kamer ensuite ( ca. 14 x 4 m) voorzien van prachtige parketvloeren met aan de achterzijde een geïntegreerde keuken met kookeiland met diverse inbouwapparatuur en openslaande deuren naar de heerlijke achtertuin op het Zuid-Westen.

Achter(zij)slaapkamer met ingebouwde kasten en toegangsdeur naar de tuin.

Vanuit de gang een vaste trap naar het souterrain met een tweede slaapkamer met daglicht.

Het betreft hier een super leuk,klassiek parterre-appartement. Kom maar gauw kijken !!!


Bijzonderheden :

- Aanvaarding kan snel
- Eigen grond
- Bouwjaar 1914
- Woonoppervlak 87 m2
- Energielabel B
- Geheel voorzien van dubbele beglazing
- Cv-combi installatie ( 2011)
- Electra 13 groepen +aardlekschakelaars
- Rijks beschermd stadsgezicht Statenkwartier
- VvE wordt opgestart conform wettelijke eisen ( ca.€ 100.- per maand)
- Collectieve opstalverzekering
- Ouderdoms-, niet-bewonings- en materialenclausules van toepassing


Interesse in dit appartement ? Schakel direct uw eigen NVM-aankoopmakelaar in. Uw NVM-aankoopmakelaar komt op voor uw belang en bespaart u tijd,geld en zorgen.

Deze informatie is door ons met de nodige zorgvuldigheid samengesteld. Onzerzijds wordt echter geen enkele aansprakelijkheid aanvaard voor enige onvolledigheid, onjuistheid of anderszins,dan wel de gevolgen daarvan.

Kenmerken

Overdracht

Prijs
€ 535.000 k.k.
Status
Beschikbaar
Oplevering
Per direct

Bouw

Soort appartement
Benedenwoning, Appartement
Woonlaag
1
Soort bouw
Bestaande bouw
Bouwjaar
1914
Onderhoud binnen
Goed
Onderhoud buiten
Goed

Oppervlakten en inhoud

Woonoppervlakte
87m²
Inhoud
316m³

Indeling

Aantal kamers
4
Aantal slaapkamers
2
Aantal verdiepingen
1

Energie

Energielabel
B
Isolatie
Dubbel glas
Warm water
C.V.-ketel
Verwarming
C.V.-ketel
Ketel
(2011, Combi-ketel, Eigendom)

Buitenruimte

Ligging
Aan rustige weg, In woonwijk
Tuin
Achtertuin, Voortuin
Achtertuin
Zuidwest, 46m², 650×700cm

Garage

Locatie

[ { "address": "Van Beverningkstraat 133", "zipCode": "2582 VD", "city": "Den Haag", "lat": 52.0894434, "lng": 4.2726878, "heading": 0, "pitch": 0 } ]

Plattegronden

Reageer

Uw bericht is naar ons verzonden. Wij nemen zo snel mogelijk contact met u op.

Sorry, we kunnen helaas niet met zekerheid vaststellen of je een mens of een geautomatiseerde bot/spammer bent. Hierdoor kunnen we het formulier dat je hebt ingevuld niet verzenden. Probeer het opnieuw of neem direct contact op met de makelaar via e-mail.

Er is iets mis gegaan met het versturen van het formulier.
Controleer of u alle velden (goed) heeft ingevoerd en probeer het nog een keer.

recaptcha
reCAPTCHA
PrivacyTerms

Vergelijkbare woningen

Verkocht
 131m²
 4 slaapkamers
Emmastraat 55 A
Den Haag
€ 495.000 k.k.
Verkocht
 132m²
 2 slaapkamers
Noordeinde 98 A
Den Haag
€ 625.000 k.k.
Verkocht
 126m²
 2 slaapkamers
Frankenslag 135 B
Den Haag
€ 570.000 k.k.