Archimedesstraat 44, Den Haag

Omschrijving

In het gewilde "Duinoord" gelegen sfeervolle en charmante étagewoning (ca. 73m2) op de eerste verdieping v.v. vele originele stijldetails, fraaie visgraat parketvloeren en zonnig balkon aan de achterzijde. De gezellige Reinkenstraat met leuke winkels en gezellige cafés met terrasjes is op korte afstand. Zo ook het openbaar vervoer naar het centrum van Den Haag. De duinen en het strand zijn op fietsafstand.

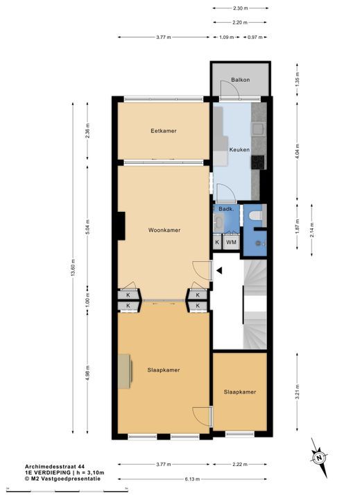
Zie de plattegronden voor de maatvoering.

Indeling: gemeenschappelijke entree, trap naar de eerste verdieping overloop met entree appartement, woon-/eetkamer ensuite v.v. ornamenten plafonds, glas in lood ramen, marmeren schouw met open haard, suite separatie met kasten, serre met oorspronkelijke separatie, moderne keuken voorzien inbouwapparatuur (w.o. afwasmachine, oven, ijskast, keramische kookplaat) en toegang tot zonnig balkon (ZW/W), moderne badkamer v.v. inloop regendouche, zwevend toilet, wastafel en inbouwkast met opstelplaats voor wasmachine en droger, slaapkamer aan de voorzijde.

Overig:
- Gelegen op eigen grond;
- 1/8ste aandeel in de VvE met maandelijkse bijdrage van € 141,15;
- Collectieve opstalverzekering en meerjaren onderhoudsplanning;
- Houten kozijnen met dubbele beglazing;
- Energielabel D;
- De algemene ouderdoms- en materialenclausules worden in de NVM koopovereenkomst opgenomen;
- Oplevering in overleg.

Interesse in dit huis? Schakel direct uw eigen NVM aankoopmakelaar in.
Uw NVM aankoopmakelaar komt op voor uw belang en bespaart u tijd, geld en zorgen.
Adressen van collega NVM aankoopmakelaars in Haaglanden vindt u op funda.nl.

Deze informatie is door ons met de nodige zorgvuldigheid samengesteld. Onzerzijds wordt echter geen enkele aansprakelijkheid aanvaard voor enige onvolledigheid, onjuistheid of anderszins, dan wel de gevolgen daarvan. Alle opgegeven maten en oppervlakten zijn indicatief.

Kenmerken

Overdracht

Prijs
€ 430.000 k.k.
Status
Verkocht
Oplevering
In overleg

Bouw

Soort appartement
Bovenwoning
Woonlaag
Soort bouw
Bestaande bouw
Bouwjaar
1904
Onderhoud binnen
Goed
Onderhoud buiten
Goed

Oppervlakten en inhoud

Woonoppervlakte
73m²
Inhoud
272m³

Indeling

Aantal kamers
4
Aantal slaapkamers
2
Aantal badkamers
1
Aantal verdiepingen
1
Voorzieningen
Mechanische ventilatie, Rookkanaal, TV-Kabel

Energie

Energielabel
D
Isolatie
Dubbel glas
Warm water
C.V.-ketel
Verwarming
C.V.-ketel, Open haard
Ketel
Remeha Avanta (2017, Combi-ketel, Eigendom)

Buitenruimte

Ligging
Aan rustige weg, In woonwijk
Balkon
Ja

Garage

Locatie

[ { "address": "Archimedesstraat 44", "zipCode": "2517 RW", "city": "Den Haag", "lat": 52.0807648, "lng": 4.278709, "heading": 0, "pitch": 0 } ]

Documenten

Reageer

Uw bericht is naar ons verzonden. Wij nemen zo snel mogelijk contact met u op.

Sorry, we kunnen helaas niet met zekerheid vaststellen of je een mens of een geautomatiseerde bot/spammer bent. Hierdoor kunnen we het formulier dat je hebt ingevuld niet verzenden. Probeer het opnieuw of neem direct contact op met de makelaar via e-mail.

Er is iets mis gegaan met het versturen van het formulier.
Controleer of u alle velden (goed) heeft ingevoerd en probeer het nog een keer.

recaptcha
reCAPTCHA
PrivacyTerms

Vergelijkbare woningen

Verkocht
 92m²
 2 slaapkamers
Pieter Meinersstraat 88
Den Haag
€ 475.000 k.k.
Verkocht
 131m²
 4 slaapkamers
Emmastraat 55 A
Den Haag
€ 495.000 k.k.
Verkocht
 73m²
 2 slaapkamers
Waldeck Pyrmontkade 9
Den Haag
€ 349.000 k.k.