Anna Paulownastraat 117 19, Den Haag

Omschrijving

In het fraaie appartementengebouw “Résidence Carnegie” pal tegenover het Vredespaleis in het gewilde Zeeheldenkwartier gelegen recent zeer smaakvol gerenoveerd beneden appartement met één slaapkamer, berging, grote gemeenschappelijke mooi aangelegde tuin en gemeenschappelijke fietsenstalling in het souterrain. Ideale ligging op loopafstand van winkels, Paleis Noordeinde, De Koninklijke Stallen, cafés en restaurants, openbaar vervoer, de Scheveningse Bosjes, het strand en de duinen op fietsafstand en nabij het stadscentrum en uitvalswegen.

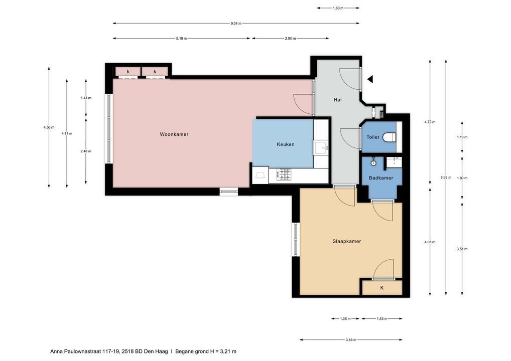
Zie de plattegronden voor de maatvoering.

Indeling: chique gemeenschappelijke entree, met royale hal met toegang tot de fraai aangelegde gemeenschappelijke binnentuin, smaakvol gestoffeerd trappenhuis en lift, entree appartement, hal v.v. visgraat parketvloeren, meterkast en modern toilet met mechanische ventilatie, moderne zwarte staal/glas deur met toegang tot de sfeervolle woon- eetkamer eveneens met visgraat parketvloer, op maat gemaakte kasten en uitzicht op het Vredespaleis, moderne open keuken v.v. vloerverwarming, inbouw gaskookplaat, elektrische oven, ijskast/vriezer, afwasmachine en kast met opstelplaats wasmachine/droger en c.v. ketel.
Ruime slaapkamer met vaste kast, visgraat parketvloer en toegang tot de luxe badkamer v.v. douche, vloerverwarming, wastafelmeubel en mechanische ventilatie.

Overig:
- Gelegen op eigen grond;
- Energielabel E;
- Actieve VvE met maandelijkse bijdrage van € 136,57;
- Duurzaam MJOP;
- Rijks beschermd stadsgezicht;
- De algemene ouderdoms- en materialenclausules en de niet-zelfbewoningsclausule worden in de NVM koopovereenkomst opgenomen;
- Oplevering in overleg (kan snel).

Interesse in dit huis? Schakel direct uw eigen NVM aankoopmakelaar in.
Uw NVM aankoopmakelaar komt op voor uw belang en bespaart u tijd, geld en zorgen.
Adressen van collega NVM aankoopmakelaars in Haaglanden vindt u op funda.nl.

Deze informatie is door ons met de nodige zorgvuldigheid samengesteld. Onzerzijds wordt echter geen enkele aansprakelijkheid aanvaard voor enige onvolledigheid, onjuistheid of anderszins, dan wel de gevolgen daarvan. Alle opgegeven maten en oppervlakten zijn indicatief.

Kenmerken

Overdracht

Prijs
€ 395.000 k.k.
Status
Beschikbaar
Oplevering
In overleg

Bouw

Soort appartement
Benedenwoning
Woonlaag
1
Soort bouw
Bestaande bouw
Bouwjaar
1932
Onderhoud binnen
Uitstekend
Onderhoud buiten
Goed

Oppervlakten en inhoud

Woonoppervlakte
61m²
Inhoud
244m³

Indeling

Aantal kamers
2
Aantal slaapkamers
1
Aantal badkamers
1
Aantal verdiepingen
1
Voorzieningen
Mechanische ventilatie, TV-Kabel

Energie

Energielabel
E
Isolatie
Dubbel glas
Warm water
C.V.-ketel
Verwarming
C.V.-ketel, Vloerverwarming gedeeltelijk
Ketel
Nefit HR (2021, Combi-ketel, Eigendom)

Buitenruimte

Ligging
Aan rustige weg, In centrum

Garage

Locatie

[ { "address": "Anna Paulownastraat 117", "zipCode": "2518 BD", "city": "Den Haag", "lat": 52.0869876, "lng": 4.2988882, "heading": 0, "pitch": 0 } ]

Plattegronden

Reageer

Uw bericht is naar ons verzonden. Wij nemen zo snel mogelijk contact met u op.

Sorry, we kunnen helaas niet met zekerheid vaststellen of je een mens of een geautomatiseerde bot/spammer bent. Hierdoor kunnen we het formulier dat je hebt ingevuld niet verzenden. Probeer het opnieuw of neem direct contact op met de makelaar via e-mail.

Er is iets mis gegaan met het versturen van het formulier.
Controleer of u alle velden (goed) heeft ingevoerd en probeer het nog een keer.

recaptcha
reCAPTCHA
PrivacyTerms

Vergelijkbare woningen

Verkocht
 73m²
 2 slaapkamers
Waldeck Pyrmontkade 9
Den Haag
€ 349.000 k.k.
Verkocht
 80m²
 2 slaapkamers
Vreeswijkstraat 403
Den Haag
€ 327.500 k.k.
Verkocht
 63m²
 2 slaapkamers
Marcelisstraat 102
Den Haag
€ 399.000 k.k.